Unsere Pfahlgründung: Das Fundament unterm Fundament

Unsere Pfahlgründung: Das Fundament unterm Fundament

20. Juli 2018 Aus Von kiwiebke

Jeder weiß: Das wichtigste beim Bauen ist das Fundament. Bei einem großen und teuren Projekt wie dem Hausbau darf man bei diesem Posten nicht sparen. Deshalb gab es auch keinen Weg an einer Pfahlgründung unseres Hauses vorbei. Denn der Untergrund ist torfig und laut Bodenuntersuchungen leider nicht tragfähig ohne Gründung.

Da sagt der Wolf: „Ich werde strampeln und trampeln, ich werde husten und prusten und dir dein Haus zusammenpusten.“ Und der Wolf strampelte und trampelte, er hustete und prustete und pustete das ganze Haus zusammen.

Bei den drei kleinen Schweinchen war nur das Steinhaus beständig. Wir haben mit dem dritten Schwein gemeinsam, dass wir auch ein Haus Stein-auf-Stein bauen. Doch das Gewicht so eines Steinhauses muss auch vom Fundament getragen werden können. Wir wussten bereits vor dem Kauf des Grundstücks, dass eine Pfahlgründung notwendig ist und diese teuer wird. Da das Grundstück aber ansonsten viele Vorteile für uns hat, haben wir uns dennoch für den Kauf entschieden.

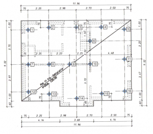
Trotz der teuren Tasse Tee war die Pfahlgründung sehr spannend. Es musste auf Grundlage der Gebäudestatik die Statik für das Fundament berechnet werden. Dabei wurde dann auch festgelegt, wo welcher Pfahl hingesetzt wird.

Die Pfähle unserer Gründung wurden nicht gerammt, sondern gebohrt.

  1. Es wird mit großer Maschine ein Loch in den Boden gebohrt.
  2. Danach wird das Loch mit Beton aufgefüllt.
  3. Nach Beendigung des Betoniervorgangs, wird der Bohrer aus dem Loch entfernt.
  4. Am Ende wird eine Anschlussbewehrung aus Metall in den Pfahl gesteckt, um später die Gründung mit dem Fundament zu verbinden.

Die Bohrlöcher / -pfähle sind 12 Meter tief im Boden. Der Bohrer hat eine Hohe von 13 m. Auf dem Bild kann man schön sehen, dass der Bohrer über das Nachbarhaus hinaus ragt.

Auf dem zweiten Bild sieht man schön, dass der Beton über einen weiteren Arm in den Pfahl gepumpt wird.

 

Nur Marcus konnte das Spektakel sehen. Ich hab es leider nicht geschafft rechtzeitig da zu sein. Am Nachmittag war bereits alles abgebaut als ich kam. Das Bohrrohr wurde geputzt und die Bauarbeiter sagten, da war schon ordntlich Torf im Boden. Sprich: Es hat sich gelohnt zu gründen.

Am Ende hinterlassen die Bauarbeiter ein riesiges Schlachtfeld! Denn die ganze Erde wurde einfach  neben den Bohrpfählen liegen gelassen.

Da muss wohl doch nochmal der Bagger ran. – War aber natürich so geplant. 😉